Projekt bytového domu NUEVO v Stupave sme pripravovali od roku 2019. Samotná realizácia prebehla v rokoch 2022 a 2023. Projekt sa pripravoval postupne, od prvotných škíc na mieste činu, cez územné konanie, stavebné povolenie a realizačnú fázu.

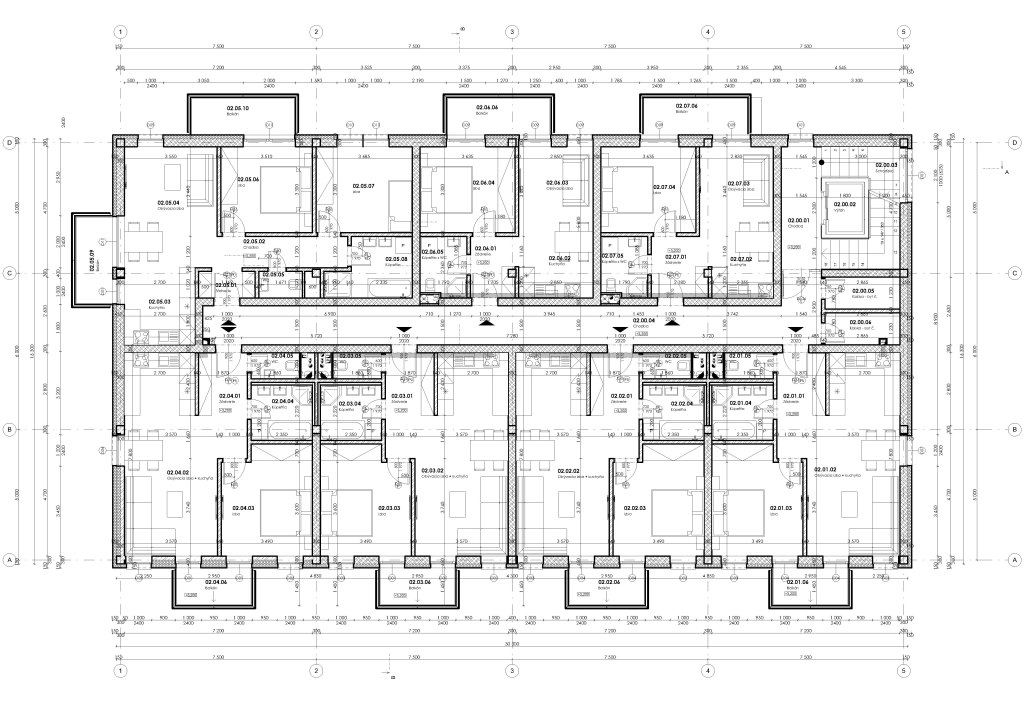
Požiadavka bola navrhnúť bytový dom, ktorý bude mať 4 nadzemné podlažia bytov a jedno podzemné podlažie parkovania. Obytné podlažia sú takmer identické so 7 bytmi na podlaží a podzemné podlažie sme navrhli ako prevetrávaný priestor, ktorý má svoje výhody, hlavne čo sa týka nákladov na výstavbu a samotnú prevádzku.

Prízemie objektu je čiastočne dvihnuté voči okolitému terénu a je to z dôvodu väčšieho súkromia a bezpečnosti bytov na prízemí. Za totality sa tento koncept používal pomerne často a nebol to až taký zlý nápad.

Jadro bytového domu je umiestnené excentricky čo je neobvyklé pri navrhovaní bytového domu. V konečnom dôsledku je potrebné iba priečne stužiť samotnú stavbu pár železobetónovými prvkami a pokiaľ sa jedná o menší bytový dom ako je tento, nemáte problém ani s požiarnou únikovou cestou ani samotnou vzdialenosťou od výťahu k bytom.

Pridaj komentár